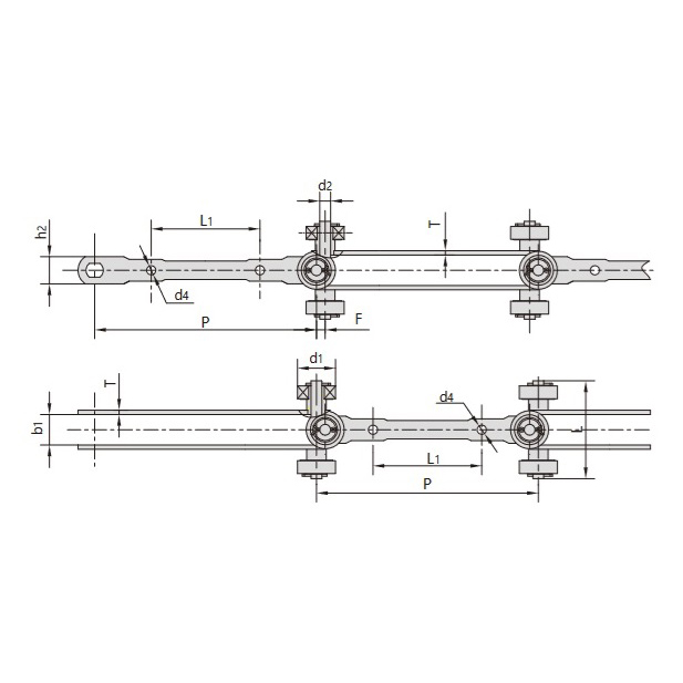
двойна шарнирна верига за транспортиране с универсално движение

Двойната шарнирна конвейерна верига е механично устройство, което се състои от две успоредни и синхронизирани движещи се вериги. Всяка верига се състои от редица свързващи звена, които са свързани с шарнири.

Описание

Двойната шарнирна верига на конвейера е проектирана за висока гъвкавост и адаптивност към натоварването. Уникалната й структура позволява на веригата да се върти гъвкаво под налягането и ударите на натоварването, което я прави подходяща за различни работни условия и изисквания за натоварване.

Характеристики

  • Гъвкавост:Всяка връзка е свързана с панти, което придава на веригата отлична гъвкавост, за да се адаптира към различни условия на огъване и усукване.
  • Носеща способност:Ролките се въртят върху закалени щифтове и втулки, което позволява на веригата да издържа на високо налягане и удари за надеждна работа при тежки условия.
  • Синхронизация:Две успоредни вериги се движат синхронно, осигурявайки стабилност и ефективност при транспортирането на материали.
  • Адаптивност:Стъпката на веригата може да се регулира, за да отговаря на различни работни изисквания за различни приложения.

Приложения

  • Широко използвани в промишлени области като транспортиране на материали и пренос по производствени линии.
  • Идеален за сложни работни среди и транспортни нужди, които изискват както гъвкавост, така и здравина.
Технически параметри

техническа таблица за двойно шарнирна конвейерна верига

техническа таблица за двойно шарнирна конвейерна верига